
Oma tuotanto
-Laadukkaita koteja suoraan rakentajalta
Olemme ylpeänä laajentaneet toimintaamme perinteisistä rakennusprojekteista myös omaan tuotantoon. Tämä tarkoittaa, että suunnittelemme, rakennamme ja myymme itse laadukkaita uudiskohteita halutuille ja arvostetuille asuinalueille.
Kun ostat kodin suoraan omasta tuotannostamme, haluamme tarjota sinulle joustavuutta. Vaikka suurin osa kohteistamme myydään täysin muuttovalmiina, voit projektin vaiheesta ja aikataulusta riippuen päästä vaikuttamaan merkittävästi uuden kotisi ilmeeseen.
Kaikki myyntiin tulevat kohteemme julkaistaan Etuovi.com-palvelussa. Päivitämme linkit myynti-ilmoituksiin tälle sivulle heti niiden ilmestyttyä.
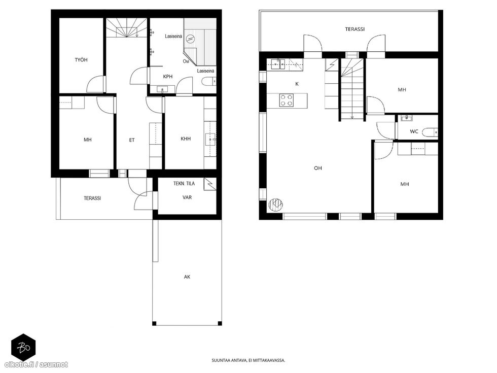
Paritalo, Naantali
Tulossa myyntiin – Ennakkomarkkinoinnissa
Paritalo, Aurinko Golf, Naantali
(Arvioitu valmistuminen: 2026)
Upealle ja arvostetulle Aurinko Golfin alueelle Naantaliin rakentuu moderni ja korkeatasoinen paritalokohde. Tämä on ainutlaatuinen mahdollisuus yhdistää tasokas asuminen, luonnonläheisyys ja golfharrastuksen helppous. Suunnittelussa on panostettu laadukkaisiin materiaaleihin, valoisiin tiloihin ja toimiviin pohjaratkaisuihin, jotka palvelevat vaativampaakin makua.
Rakentaminen on alkanut loppukesästä. Samalle alueelle tulossa myös lisää tuotantoa, joten pysythän kuulolla!
Ole ensimmäisten joukossa kuulemassa lisää!
Kysy lisää tästä toteutuksesta sekä juuri sinulle sopivasta ratkaisusta.
Valmistuneet Kohteet
As. Oy Kaarinan Katve (06/2023)
Tämä Kaarinan keskustaan valmistunut yhdeksän asunnon hirsirivitalo on erinomainen esimerkki ammattitaidostamme ja laadukkaasta työnjäljestämme. Kohde yhdistää modernin arkkitehtuurin, hirsirakentamisen terveellisyyden ja keskeisen sijainnin palveluiden äärellä. Jokaisella asunnolla on oma ulkovarasto, ja kiinteistöön kuuluu autokatos.
Tutustu upeaan kohteeseen oheisen videon ja kuvien kautta!
Oma tuotano
Miksi valita koti omasta tuotannostamme?
Tinkimätön laatu: Vastaamme itse koko rakennusketjusta suunnittelupöydältä avainten luovutukseen. Valvomme jokaista työvaihetta ja varmistamme, että lopputulos täyttää korkeimmat laatuvaatimuksemme.
Läpinäkyvä prosessi: Kun ostat suoraan meiltä, kommunikointi on mutkatonta ja avointa. Tiedät aina, kuka kotisi rakentaa ja keneen olla yhteydessä.
Nykyaikaiset ratkaisut: Suunnittelemme koteja, jotka vastaavat tämän päivän asumisen tarpeita. Panostamme energiatehokkaisiin ratkaisuihin, kestäviin materiaaleihin ja ajattomaan viimeistelyyn.
Luotettava kumppani: Olemme vankka, paikallinen toimija, jolla on vuosien kokemus laadukkaasta rakentamisesta. Meille on kunnia-asia, että rakentamamme kodit tuottavat iloa asukkailleen vuosikymmeniksi eteenpäin.

Kiinnostuitko tulevista kohteistamme?
Onko sinulla mielessäsi uuden kodin hankinta?
Ota yhteyttä, niin keskustellaan lisää tulevista projekteistamme ja löydetään yhdessä sinulle sopiva koti.

PIKAYHTEYDENOTTO
Täytä oheiseen lomakkeeseen nimesi ja puhelinnumerosi, niin otamme sinuun yhteyttä mahdollisimman pian!
Voit myös soittaa suoraan meille: